De centrale transmissiestructuur wordt in het algemeen gebruikt om het onderste slib van verschillende cirkelvormige sedimentatietanks met een tankdiameter van minder dan 18 m te schrapen (in het algemeen is het watervolume van een enkele tank minder dan 600 t/). Normaal gesproken wordt het centrale slib ontladen en wordt water ontladen uit de periferie. ZXG Centrale drive slibschraper wordt in het algemeen gebruikt voor gemeentelijk afvalwater en soortgelijk afvalwater. Het soortelijk gewicht van slib is relatief licht (in het algemeen minder dan 1,2 t/m) en niet-hardende zwembadbodemslib. Over het algemeen is er geen schuimschraapfunctie en kan een helling in het zwembad worden geïnstalleerd. Plaat of hellende buis om het neerslageffect te verbeteren.
De ZXN -centrumaandrijfconcentrator is vergelijkbaar met het ZXG -type. Het wordt voornamelijk gebruikt om het slib van de gewone sedimentatietank verder te verdikken. De structuur heeft een extra roostergedeelte (het verhogen van de compactheid van het slib) vergeleken met de slibschraper.
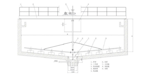
Werkbrugstructuur: het type stalen straal moet worden gebruikt als de zwembaddiameter minder dan 10 meter is en de trussstraal moet worden gebruikt als de zwembaddiameter groter is dan 10 meter.

















